


150 000 ₽/м²
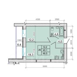
Жилой комплекс "Фаворит" - это два 14-ти этажных кирпичных дома с индивидуальным газовым отоплением в каждой квартире. Новостройки расположены около Ж/д вокзала и Дворца игровых видов спорта. Квартиры продаются напрямую от застройщика ГК Олимп и подходят под программы льготного ипотечного кредитования. В жилом комплексе Фаворит большой выбор современных просторных планировок, в том числе евро-двухкомнатные и евро-трехкомнатные квартиры с кухнями-гостиными до 25.6 кв.м. Преимущества жилого комплекса "Фаворит": • Кирпичное строительство. • Надежные тепло- и шумоизоляция. • Индивидуальное газовое отопление в каждой квартире. • Функциональные планировки. • Лоджии с панорамным остеклением и выводом отопления. • В комнатах и лоджиях установлены двойные стеклопакеты 60 профиля фирмы Rehau с мультифункциональным стеклом. • Высокие потолки от 3 до 3,6 метра. • Закрытая территория. • Хорошая инфраструктура вокруг ЖК -всё важное в шаговой доступности. Предусмотрена продажа кладовых помещений на цокольном этаже, а также индивидуальных мест с навесом для паркинга. Современная архитектура жилого комплекса с панорамным остеклением создает широкий обзор, окна пропускают больше света, визуально увеличивая пространство в квартирах. В доме будет выполнена дизайнерская отделка входных групп. А также жилой комплекс будет иметь закрытую территорию и безопасную детскую площадку для семей с детьми. Купить 1-комнатную квартиру от застройщика в районе Советский в городе Иваново.










































































































































