Мы используем куки-файлы. Соглашение об использовании
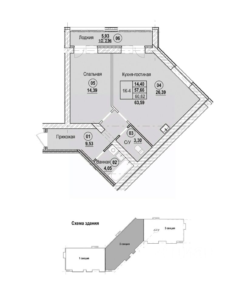
Общая площадь63,59 м²
Этаж2 из 8
Год сдачи2028
ДомНе сдан
ОтделкаЧерновая
Продаётся 1-комнатная квартира в строящемся доме (Литер Б), срок сдачи: II-кв. 2028, общей площадью 63.59 кв.м., на 2 этаже. Новый жилой комплекс "Новая Дерябиха 4" от застройщика "ГК СМУ 1" расположен по адресу: Ивановский район, деревня Дерябиха.

О квартире

Тип жилья

Новостройка

Общая площадь

63,59 м²

Высота потолков

2,7 м

Отделка

Черновая

О доме

Количество лифтов

3 пассажирских

Тип дома

Кирпичный

Пандус

Есть

Понравилась квартира — узнайте о ней больше

Застройщик ответит на все вопросы

Варианты отделки в ЖК

  • Черновая
Похоже на то, что вы ищете?

Акции в ЖК «Иволга»

Узнайте про персональные условия и дополнительные скидки при покупке квартиры у застройщика
Ипотечный калькулятор
  • Базовая
  • Семейная
  • ИТ-ипотека
  • 20%
  • 30%
  • 40%
  • 50%
лет
  • 10 лет
  • 20 лет
  • 30 лет
Загружаем предложения от застройщика и банков

Расположение

Корпус проверен наш.дом.рф
Обновлено 31 марта 2026
  • Нет в реестре проблемных объектов
  • Застройщик не банкрот
  • Есть эскроу счёт
  • Актуальные фото стройки

Ещё квартиры в жилом комплексе

214 квартир в продаже · Сдача в 2026—2028
ЗастройщикГК СМУ № 1
Год основания: 1929
Строится: 3 дома в 2 ЖК
5 787 000 ₽
Цена за метр
91 005 ₽/м²
Условия сделки
долевое участие (214-ФЗ)