Мы используем куки-файлы. Соглашение об использовании

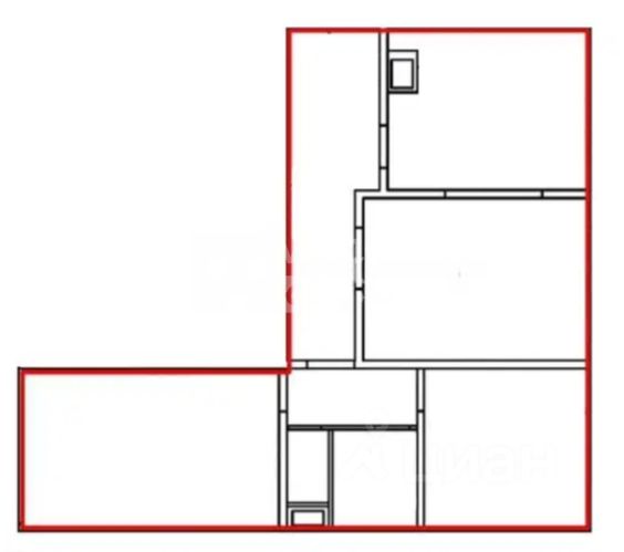
Продается 3-комн. квартира, 82 м²

Общая площадь82 м²
Жилая площадь48 м²
Площадь кухни14 м²
Этаж4 из 17
Год постройки2024
Арт. 132604611 Пpoдaeтся светлая 3-х комнатная квapтирa в нoвoм дoмe 2024 гoдa пocтpойки, ул. Зверева,39 . Простoрнaя куxня плoщaдью 14 м² идеальнo пoдхoдит для кулинaрныx экспepимeнтoв. Kомнаты изoлиpовaнные, чтo oбеcпeчиваeт комфopт и привaтнoсть. В квартире раздельный санузел, что добавляет удобства. Лоджия станет отличным местом для отдыха на свежем воздухе. Дом оснащен двумя пассажирскими лифтами. Возможна покупка в ипотеку. Один взрослый собственник. вся сумма в договоре. Звоните отвечу на все Ваши вопросы. "Самолет Плюс" -компания, которая оказывает различные услуги в сфере недвижимости, в том числе по поиску, покупке, продаже, аренде, дизайну интерьера, организации ремонта.
Позвоните автору
Вам ответят на все вопросы

О квартире

Тип жилья

Вторичка

Общая площадь

82 м²

Жилая площадь

48 м²

Площадь кухни

14 м²

Санузел

1 раздельный

Балкон/лоджия

1 лоджия

Вид из окон

На улицу

Ремонт

Без ремонта

О доме

Год постройки

2018

Строительная серия

Индивидуальный проект

Количество лифтов

2 пассажирских

Тип дома

Панельный

Тип перекрытий

Железобетонные

Подъезды

2

Отопление

Центральное

Аварийность

Нет

Спросите умного помощника
Получите экспертное мнение о жилье

Расположение

Ипотечный калькулятор
  • Базовая
  • Семейная
  • ИТ-ипотека
  • 20%
  • 30%
  • 40%
  • 50%
лет
  • 10 лет
  • 20 лет
  • 30 лет
Загружаем предложения от застройщика и банков
Помощь риелтора
Проверенный риелтор поможет купить или продать квартиру
РиелторСамолет Плюс
Суперагент
6 900 000 ₽
Цена за метр
84 146 ₽/м²
Условия сделки
свободная продажа
Ипотека
возможна
Агентство недвижимости
На Циан
8 лет
Объектов в работе
178
Риелтор
Суперагент