73 585 ₽/м²
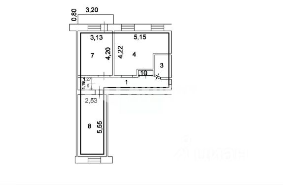
Лот:5887. Агентство недвижимости "Радуга" предлагает к покупке просторную, уютную, трёхкомнатную квартиру на втором этаже четырёхэтажного кирпичного дома , расположенную по адресу г. Иваново, ул. Красных Зорь, д.1 ПРЕИМУЩЕСТВА КВАРТИРЫ: Не угловая В комнатах имеются вместительные кладовки, для дополнительного хранения вещей Тёплая, светлая, уютная Свежий косметический ремонт (заезжай и живи) Достаточное количество парковочных мест во дворе. В квартире имеется балкон ПВХ остекление во всей квартире РАЗВИТАЯ ИНФРАСТРУКТУРА: Дом находится в центральной части города ! Во дворе дома расположена детская площадка. В шаговой доступности от дома: Детские сады : 56,10,148,28,102 Поликлиники 1;6 Школы . Салоны красоты Фитнес -клуб Торговые центры Аптеки Остановки общественного транспорта Магазины,маркет плейсы: Бристоль,пятёрочка,яндекс маркет,валберис,Фикс прайс,миленарис,инвитро. ДОПОЛНИТЕЛЬНЫЕ ПЛЮСЫ: Чистый подъезд. Приятная придомовая территория. Доброжелюбные соседи. Наличие парковочных мест во дворе. Показать можем в любое удобное для Вас время! УСЛОВИЯ ПРИОБРЕТЕНИЯ: . Рассмотрим любую форму расчётов, полное юридическое сопровождение. . Быстрый выход на сделку, чистая продажа, один взрослый собственник без долгов и обременений. Купить 3-комнатную квартиру до 5 млн рублей в районе Фрунзенский в городе Иваново.
























































































