Первичная продажа



3 акции
18 890 000 ₽
170 657 ₽/м²
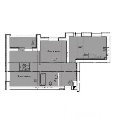
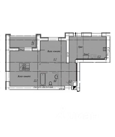
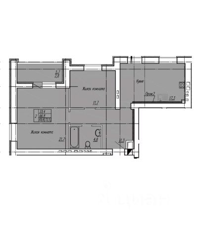
Продаётся 3-комнатная квартира в сданном доме (Ленина, 55В), срок сдачи: IV-кв. 2025, общей площадью 110.69 кв.м., на 14 этаже. ЖК "Левитан" - это современный жилой комплекс названный в честь великого русского художника, мастера "пейзажа
настроения" Исаака Левитана. Атмосфера творчества в каждой детали. Дизайнерская отделка подъезда, лифтовых холлов и репродукции картин великого
Исаака Левитана на стенах.
ЖК "Левитан" расположен рядом с одним из центральных проспектов города, будущим жильцам обеспечены отличные видовые характеристики и быстрый доступ ко всей необходимой инфраструктуре.
Удобства для жильцов дома ЖК "Левитан":
мойка лап домашних животных;помещения для консьержа;колясочная;дизайнерская отделка подъезда и лифтовых холлов;малошумные комфортные лифты;полезные пространства для хранения вещей: сити-боксы (кладовые);лифт на этаж с ситибоксами.Квартиры:
эргономичные и удобные планировки;современные стеклопакеты (летом прохладно, зимой тепло);аллюминевые витражи в видовых квартирах;панорамное остекление;возможность объединения для смежных квартир;современные архитектурные решения.Закрытая и благоустроенная территория:
дополнительная площадка для занятия спортом (воркаут, баскетбольная стойка);закрытая территория;видеонаблюдение;антитравматическое покрытие на детских и спортивных площадках;велопарковка;безбарьерная среда.
















































































