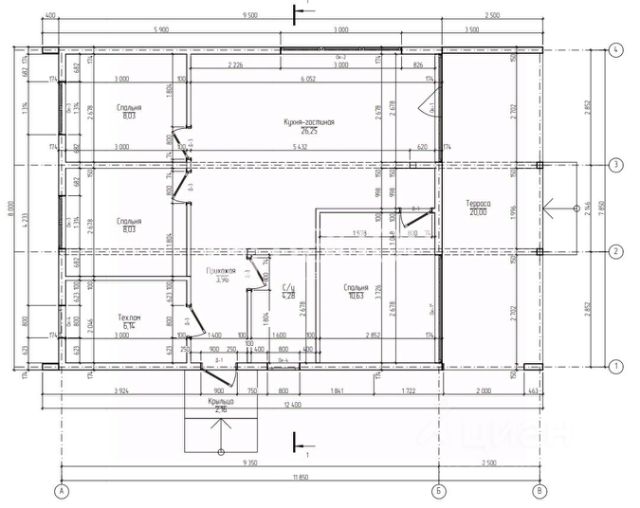
Лот:6589. Агентство недвижимости "Радуга" предлагает к продаже дом в деревне Кривцово. О участке: Размежеван Огорожен забором Выровнен Правильной формы О доме: Общая площадь дома 150 м2 Удобная планировка Установлен теплый пол: на кухне, коридоре и с/у Фундамент дома: монолитная плита Наружное утепление дома Дом 2025 года постройки Сделана отмостка Выполнен черновой ремонт О инфраструктуре: Асфальтированная дорога до участка Остановка общественного транспорта Сетевой магазин в шаговой доступности О сделке: Один взрослый собственник Полная стоимость в договоре Быстрый выход на сделку Рассмотрим любую форму оплаты (мена, ипотека и т.д.) Дом готов к продаже и ждёт новых хозяев для счастливой жизни! В продаже еще есть три аналогичных дома. АГЕНТСТВО НЕДВИЖИМОСТИ РАДУГА Более 11 лет занимает прочные, лидирующие позиции в сфере недвижимости в нашем регионе. Проведем сделку любой сложности, под ключ. Индивидуальный подход к каждому клиенту! Наш адрес: г. Иваново, ул. Кузнецова, дом 8. Мы ценим Ваше время.

































































