Хорошая цена
С мебелью
5 600 000 ₽
76 712 ₽/м²
Лот:7269.
Агентство недвижимости "Радуга" предлагает к продаже!
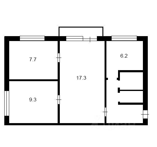
Четырехкомнатную квартиру, ПГ (Сталинка), расположенную по адресу: ул Рабфаковскаяд.10/96 ( центр города - до пл. Пушкина в пять мин на авто , рядом Храм в честь иконы Всех Скорбящих Радости).
Продается очень уютная светлая квартира с отличной планировкой (все комнаты квадратные, просторная гостинная , большая кухня,и три большие спальные комнаты). Квартира не угловая, очень высокие потолки - 3 м.
Квартира очень теплая - толщина стен 63 см. Преимуществом квартиры является то, что квартира практически сразу готова к проживаю в ней - мебель / техника по договоренности .
Подробнее о квартире:
- Площадь квартиры 72 кв.м
- кухня 8 кв.м , светлая, уютная, (ИГО, индивидуальный газовый котел), кухонный гарнитур в хорошем состоянии,бытовая техника по договоренности.
- гостинная комната 23 кв.м (просторная комната, вся мебель в хорошем состоянии ),
- спальные комнаты: 17 кв.м , 12 кв.м , 13 кв.м
- прихожая 4 кв.м
- с/у раздельный (все коммуникации в отличном состоянии)
- двухуровневые гипсокартонные потолки во всей квартире, поменяны трубы водопроводные, радиаторы чугун
- очень толстые стены и хорошая шумоизоляция
- центральные коммуникации (вода, газ, электричество)
- ИГО - низкие коммунальные платежи за отопление
Вариант "Заезжай и живи". Благоустроенная придомовая территория: места для парковки, детская площадка, тихий двор. Ближайшие к дому объекты инфраструктуры площадь Пушкина, школы, детские сады (72, 27, 135, 28, 102), Средняя Школа 55 , аптеки, магазины, и пр. Остановки общественного транспорта во все направления города. В шаговой доступности всё самое необходимое для комфортного проживания.
СРОЧНАЯ ПРОДАЖА. Документы готовы к продаже. Подходит под ипотеку, военную ипотеку и материнский капитал. Торг реальному покупателю. Один собственник более 5 лет.
Прямая или альтернативная продажа, обмен, ипотека/военная ипотека, прямой выход на банки, помощь в одобрении ипотеки, помощь с материнским капиталом и прочая юридическая консультация.
Полное сопровождение сделки под ключ! Звоните прямо сейчас! Ответим на любые Ваши вопросы и организуем просмотр в удобное для Вас время!В продаже четырехкомнатная квартира !










































































