119 893 ₽/м²
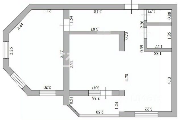
Продается уютная 2-комнатная квартира в микрорайоне Новая Ильинка, Иваново. Общая площадь — 56,3 кв. м, жилая — 30 кв. м. Квартира расположена на 2 этаже 3-этажного кирпичного дома, построенного в 2013 году. Высота потолков — 2,5 метра. В квартире выполнен современный евроремонт, что создает атмосферу уюта и комфорта. Просторная кухня площадью 10 кв. м станет отличным местом для семейных обедов и ужинов. Планировка включает 2 светлые комнаты и отдельный санузел. Также имеется лоджия, где можно наслаждаться свежим воздухом в любое время года. Дом в отличном состоянии, а его кирпичная конструкция обеспечивает хорошую тепло- и звукоизоляцию. Район с малоэтажной застройкой, поэтому для вашего автомобиля всегда найдется место. Район с развитой инфраструктурой: рядом находятся школы, детские сады, клиники и магазины. Это делает проживание здесь комфортным и удобным для семей с детьми. Удобное транспортное сообщение позволяет быстро добраться до всех ключевых точек города. Прямая продажа без посредников. Квартира готова к сделке, возможна ипотека. Документы в полном порядке, что обеспечивает прозрачность и безопасность сделки. Индивидуальное газовое отопление (ИГО). Низкие коммунальные платежи. В собственности более 5 лет. Полная сумма в договоре. Купить 2-комнатную квартиру с евроремонтом в районе Фрунзенский в городе Иваново.



















































































